Stanovi
Tehnika inzinjering Bijeljina

42.90m2 mihpup-17-2

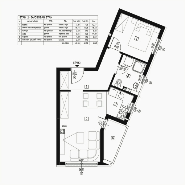
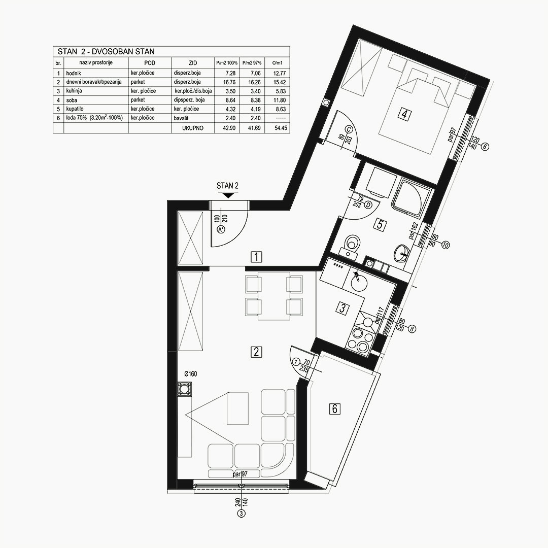
Br Prostorija Kvadratura 1 Predsoblje 7.28 m2 2 Dnevna soba/trpezarija 16.76 m2 3 Kuhinja 3.50 m2 4 Soba 8.64 m2 5 Kupatilo 4.32 m2 6 Lođa 2.40 m2   Ukupno 42.90 m2   ...Pročitajte više
3D vizuelizacija ne odgovara stvarnom rasporedu prostorija.
Mihajla Pupina 17

42.90m2

dvosoban
Dostupni spratovi
Nije dostupan
Rok završetka
30-06-2025
Besplatno

  • Struktura prostorija
Br Prostorija Kvadratura
1 Predsoblje 7.28 m2
2 Dnevna soba/trpezarija 16.76 m2
3 Kuhinja 3.50 m2
4 Soba 8.64 m2
5 Kupatilo 4.32 m2
6 Lođa 2.40 m2
  Ukupno 42.90 m2
 
Karakteristike zgrade i materijali
  • Spratnost Po+P+5
  • Vanjska stolarija PVC petokomorna
  • Ulazna vrata sigurnosna
  • Unutrašnja vrata TIP "NOVOFORM"
  • Parket hrastov
  • Keramika I klase
  • Grijanje - toplotna pumpa
  • Fasada "Demit" termoizolacija d=10 cm
  • Lift iz podruma
  • Parking
  • Garaže
  • Video nadzor objekta
Fasada
GP Tehnika inžinjering Bijeljina
Powered by limun.co