Stanovi
Tehnika inzinjering Bijeljina

27.83m2 galac-13-1

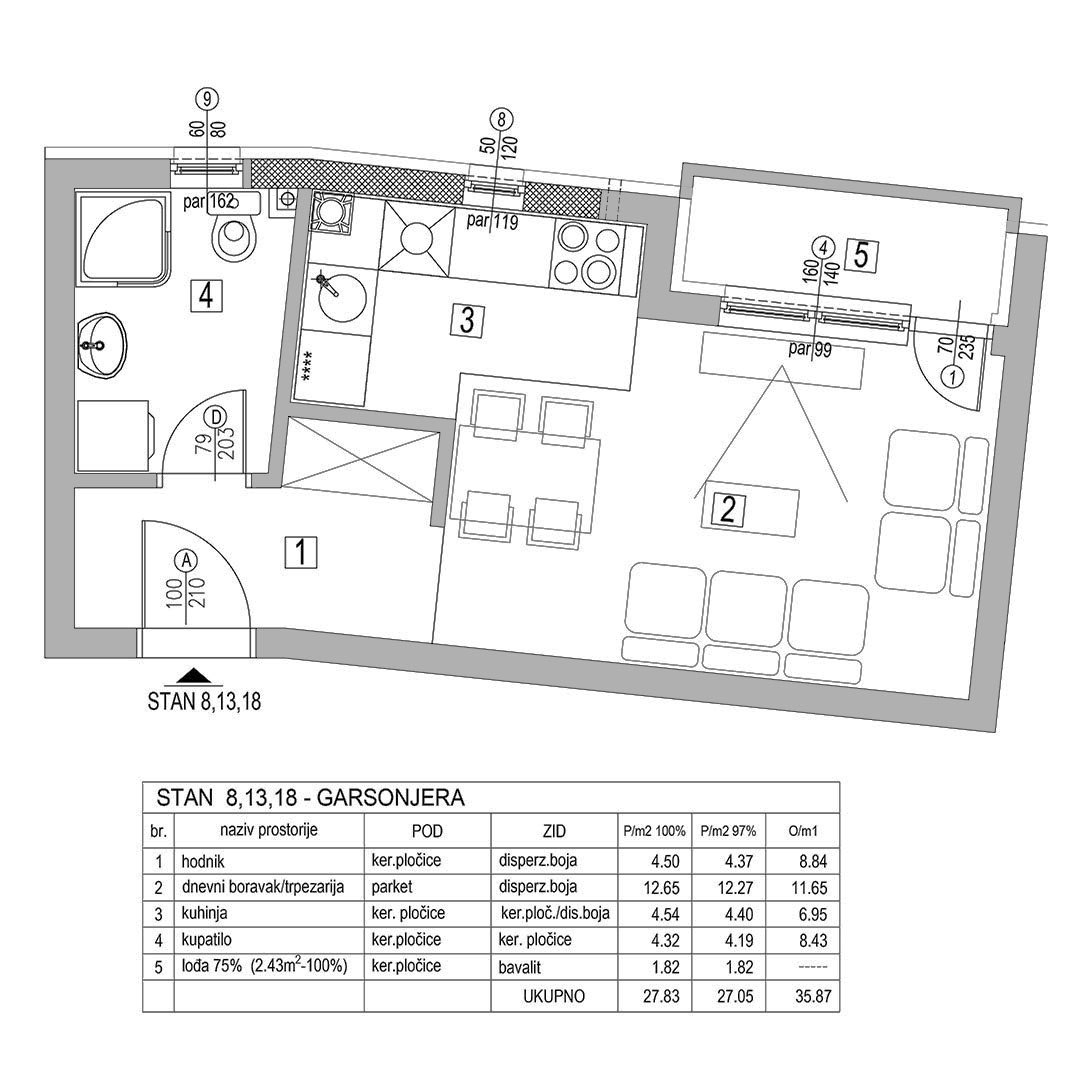
Br Prostorija Kvadratura 1 Predsoblje 4.50 m2 2 Dnevna soba/trpezarija 12.65 m2 3 Kuhinja 4.54 m2 4 Kupatilo 4.32 m2 5 Lođa 1.82 m2   Ukupno 27.83 m2   ...Pročitajte više
3D vizuelizacija ne odgovara stvarnom rasporedu prostorija.
Galac 13

27.83m2

garsonjera
Dostupni spratovi
Nije dostupan
Rok završetka
30-05-2025
Besplatno

  • Struktura prostorija
Br Prostorija Kvadratura
1 Predsoblje 4.50 m2
2 Dnevna soba/trpezarija 12.65 m2
3 Kuhinja 4.54 m2
4 Kupatilo 4.32 m2
5 Lođa 1.82 m2
  Ukupno 27.83 m2
 
Karakteristike zgrade i materijali
  • Spratnost Po+P+4
  • Vanjska stolarija PVC petokomorna
  • Ulazna vrata sigurnosna
  • Unutrašnja vrata TIP "NOVOFORM"
  • Parket hrastov
  • Keramika I klase
  • Grijanje - toplotna pumpa
  • Fasada "Demit" termoizolacija d=10 cm
  • Lift iz podruma
  • Parking
  • Garaže
  • Video nadzor objekta
Fasada
GP Tehnika inžinjering Bijeljina
Powered by limun.co