Miloša Obilića 130/132
Tehnika inzinjering Bijeljina

60.05 m2 milosaobilica-16

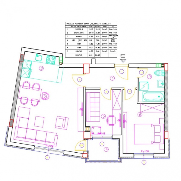
Br Prostorija Kvadratura 1 Predsoblje 5.13 m2 2 Dnevna soba 24.40 m2 3 Kuhinja 4.89 m2 4 Lođa 2.22 m2 5 Soba 7.82 m2 6 Soba 11.21 m2 7 Kupatilo 4.37 m2   Ukupno 60.05 m2 teeeeee ...Pročitajte više
3D vizuelizacija ne odgovara stvarnom rasporedu prostorija.
Miloša Obilića 130/132

60.05 m2

Ulaz:   II
trosoban
Dostupni spratovi
Nije dostupan
Rok završetka
01-06-2021
Besplatno

  • Struktura prostorija
Br Prostorija Kvadratura
1 Predsoblje 5.13 m2
2 Dnevna soba 24.40 m2
3 Kuhinja 4.89 m2
4 Lođa 2.22 m2
5 Soba 7.82 m2
6 Soba 11.21 m2
7 Kupatilo 4.37 m2
  Ukupno 60.05 m2
teeeeee
Karakteristike zgrade i materijali
  • Spratnost Po+P+5
  • Vanjska stolarija PVC petokomorna
  • Ulazna vrata sigurnosna
  • Unutrašnja vrata TIP “NOVOFORM”
  • Parket hrastov
  • Keramika I klase
  • Grijanje - kotlovnica na čvrsto gorivo
  • Fasada “Demit” termoizolacija d=10 cm
  • Lift
  • Parking
  • Garaže
Fasada
GP Tehnika inžinjering Bijeljina
Powered by limun.co