Miloša Obilića 130/132
Tehnika inzinjering Bijeljina

49.08 m2 milosaobilica-10

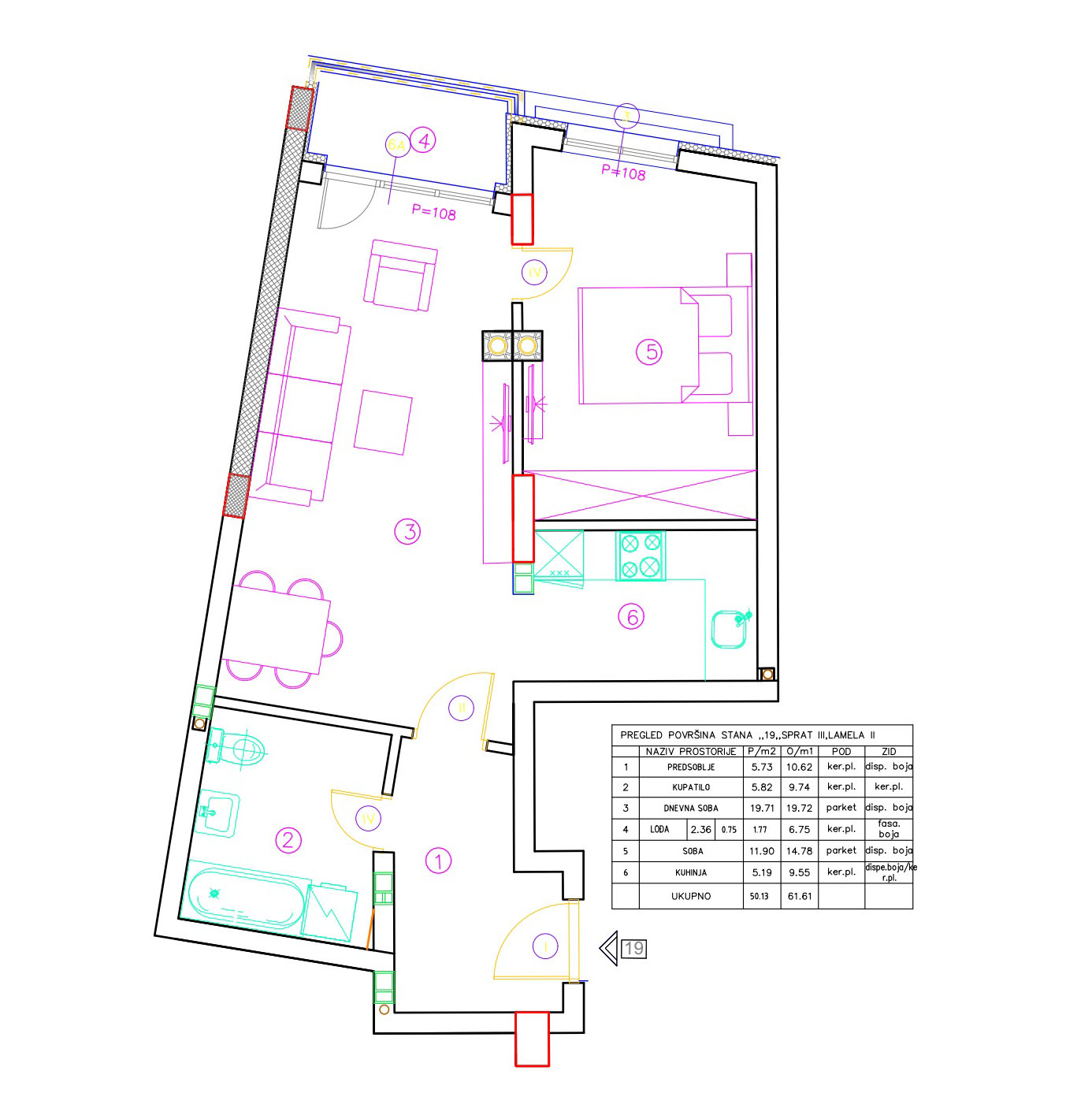
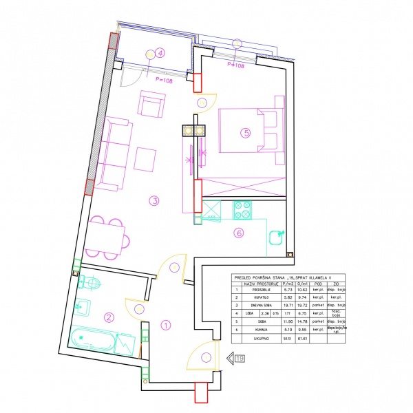
Br Prostorija Kvadratura 1 Predsoblje 5.73 m2 2 Kupatilo 5.82 m2 3 Dnevna soba 19.71 m2 4 Lođa 1.77 m2 5 Soba 11.90 m2 6 Kuhinja 5.19 m2   Ukupno 49.08 m2 teeeeee ...Pročitajte više
3D vizuelizacija ne odgovara stvarnom rasporedu prostorija.
Miloša Obilića 130/132

49.08 m2

Ulaz:   II
dvosoban
Dostupni spratovi
Nije dostupan
Rok završetka
01-06-2021
Besplatno

  • Struktura prostorija
Br Prostorija Kvadratura
1 Predsoblje 5.73 m2
2 Kupatilo 5.82 m2
3 Dnevna soba 19.71 m2
4 Lođa 1.77 m2
5 Soba 11.90 m2
6 Kuhinja 5.19 m2
  Ukupno 49.08 m2
teeeeee
Karakteristike zgrade i materijali
  • Spratnost Po+P+5
  • Vanjska stolarija PVC petokomorna
  • Ulazna vrata sigurnosna
  • Unutrašnja vrata TIP “NOVOFORM”
  • Parket hrastov
  • Keramika I klase
  • Grijanje - kotlovnica na čvrsto gorivo
  • Fasada “Demit” termoizolacija d=10 cm
  • Lift
  • Parking
  • Garaže
Fasada
GP Tehnika inžinjering Bijeljina
Powered by limun.co