Miloša Obilića 130/132
Tehnika inzinjering Bijeljina

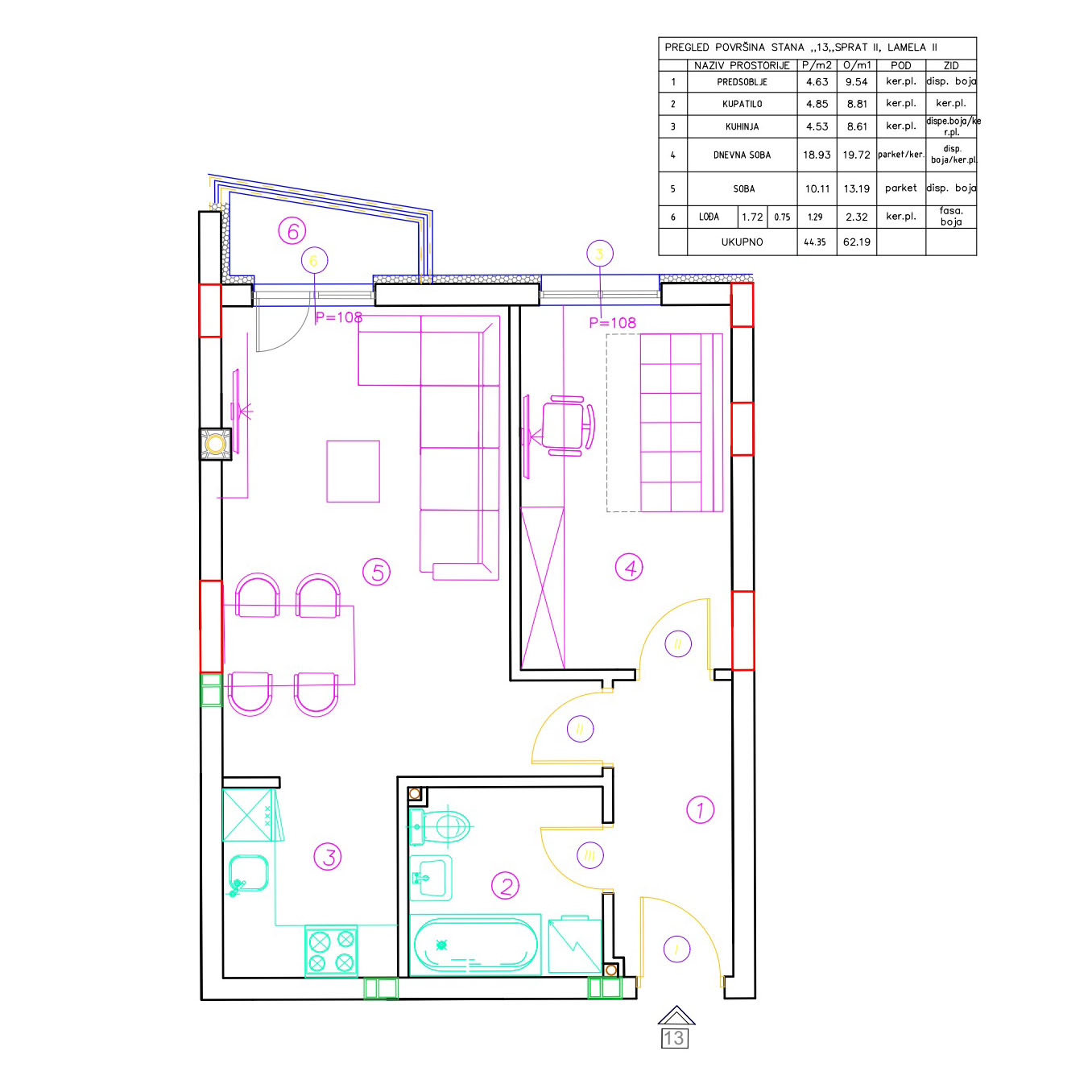
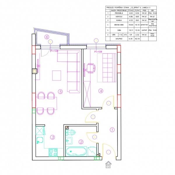
44.35 m2 milosaobilica-4

Br Prostorija Kvadratura 1 Predsoblje 4.63 m2 2 Kupatilo 4.85 m2 3 Kuhinja 4.53 m2 4 Dnevna soba 18.93 m2 5 Soba 10.11m2 6 Lođa 1.29 m2   Ukupno 44.35 m2 teeeeee ...Pročitajte više
3D vizuelizacija ne odgovara stvarnom rasporedu prostorija.
Miloša Obilića 130/132

44.35 m2

Ulaz:   II
dvosoban
Dostupni spratovi
Nije dostupan
Rok završetka
01-06-2021
Besplatno

  • Struktura prostorija
Br Prostorija Kvadratura
1 Predsoblje 4.63 m2
2 Kupatilo 4.85 m2
3 Kuhinja 4.53 m2
4 Dnevna soba 18.93 m2
5 Soba 10.11m2
6 Lođa 1.29 m2
  Ukupno 44.35 m2
teeeeee
Karakteristike zgrade i materijali
  • Spratnost Po+P+5
  • Vanjska stolarija PVC petokomorna
  • Ulazna vrata sigurnosna
  • Unutrašnja vrata TIP “NOVOFORM”
  • Parket hrastov
  • Keramika I klase
  • Grijanje - kotlovnica na čvrsto gorivo
  • Fasada “Demit” termoizolacija d=10 cm
  • Lift
  • Parking
  • Garaže
Fasada
GP Tehnika inžinjering Bijeljina
Powered by limun.co