Filipa Višnjića 82
Tehnika inzinjering Bijeljina

61.28 m2 filipavisnjica82-14

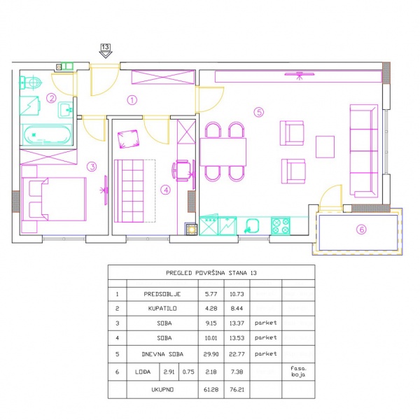
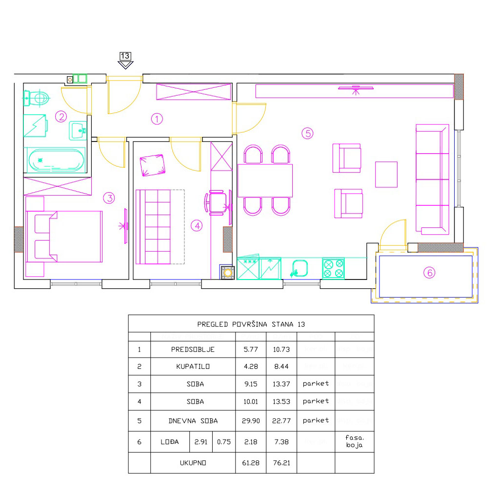
Br Prostorija Kvadratura 1 Predsoblje 5.77 m2 2 Kupatilo 4.28 m2 3 Soba 9.15 m2 4 Soba 10.01 m2 5 Dnevna soba sa kuhinjom 29.90 m2 6 Lodja 2.18 m2   Ukupno 61.28 m2   ...Pročitajte više
3D vizuelizacija ne odgovara stvarnom rasporedu prostorija.
Filipa Višnjića 82

61.28 m2

trosoban
Dostupni spratovi
Nije dostupan
Rok završetka
31-12-2022
Besplatno

  • Struktura prostorija
Br Prostorija Kvadratura
1 Predsoblje 5.77 m2
2 Kupatilo 4.28 m2
3 Soba 9.15 m2
4 Soba 10.01 m2
5 Dnevna soba sa kuhinjom 29.90 m2
6 Lodja 2.18 m2
  Ukupno 61.28 m2
 
Karakteristike zgrade i materijali
  • Spratnost Po+P+6
  • Vanjska stolarija PVC petokomorna
  • Ulazna vrata sigurnosna
  • Unutrašnja vrata TIP "NOVOFORM"
  • Parket hrastov
  • Keramika I klase
  • Grijanje - kotlovnica na čvrsto gorivo
  • Fasada "Demit" termoizolacija d=10 cm
  • Lift
  • Parking
  • Garaže
  • Video nadzor objekta
GP Tehnika inžinjering Bijeljina
Powered by limun.co