Stanovi
Tehnika inzinjering Bijeljina

36.28m2 sdg-57-4

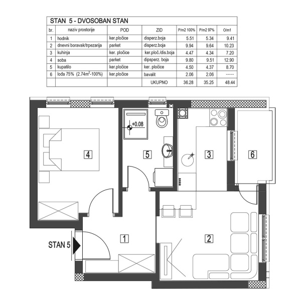
Br Prostorija Kvadratura 1 Predsoblje 5.51 m2 2 Dnevna soba/trpezarija 9.94 m2 3 Kuhinja 4.47 m2 4 Soba 9.80 m2 5 Kupatilo 4.50 m2 6 Lođa 2.06 m2   Ukupno 36.28 m2   ...Pročitajte više
3D vizuelizacija ne odgovara stvarnom rasporedu prostorija.
Srpske dobrovoljačke garde 57

36.28m2

dvosoban
Dostupni spratovi
P
Rok završetka
31-05-2027
Besplatno

  • Struktura prostorija
Br Prostorija Kvadratura
1 Predsoblje 5.51 m2
2 Dnevna soba/trpezarija 9.94 m2
3 Kuhinja 4.47 m2
4 Soba 9.80 m2
5 Kupatilo 4.50 m2
6 Lođa 2.06 m2
  Ukupno 36.28 m2
 
Karakteristike zgrade i materijali
  • Spratnost Po+P+5
  • Vanjska stolarija PVC petokomorna
  • Ulazna vrata sigurnosna
  • Unutrašnja vrata TIP "NOVOFORM"
  • Parket hrastov
  • Keramika I klase
  • Grijanje - toplotna pumpa
  • Fasada "Demit" termoizolacija d=10 cm
  • Lift iz podruma
  • Parking
  • Garaže
  • Video nadzor objekta
Fasada
PR
GP Tehnika inžinjering Bijeljina
Powered by limun.co