Stanovi
Tehnika inzinjering Bijeljina

44.00 m2 slobodana-jovanovica-4

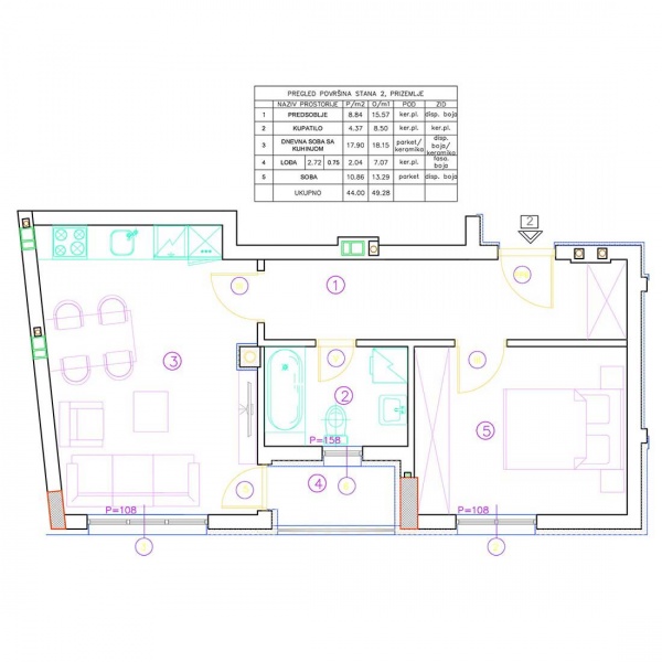
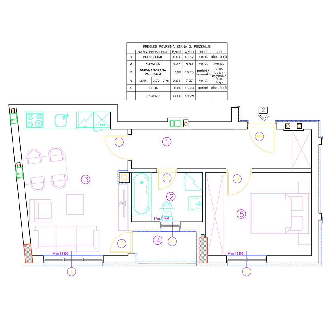
Br Prostorija Kvadratura 1 Predsoblje 8.84 m2 2 Kupatilo 4.37 m2 3 Dnevna soba sa kuhinjom 17.90 m2 4 Lođa 2.04 m2 5 Soba 10.86 m2   Ukupno 44.00 m2   ...Pročitajte više
3D vizuelizacija ne odgovara stvarnom rasporedu prostorija.
Slobodana Jovanovića 14

44.00 m2

dvosoban
Dostupni spratovi
Nije dostupan
Rok završetka
31-10-2022
Besplatno

  • Struktura prostorija
Br Prostorija Kvadratura
1 Predsoblje 8.84 m2
2 Kupatilo 4.37 m2
3 Dnevna soba sa kuhinjom 17.90 m2
4 Lođa 2.04 m2
5 Soba 10.86 m2
  Ukupno 44.00 m2
 
Karakteristike zgrade i materijali
  • Spratnost Po+P+5
  • Vanjska stolarija PVC petokomorna
  • Ulazna vrata sigurnosna
  • Unutrašnja vrata TIP "NOVOFORM"
  • Parket hrastov
  • Keramika I klase
  • Grijanje - kotlovnica na čvrsto gorivo
  • Fasada "Demit" termoizolacija d=10 cm
  • Lift
  • Parking
  • Garaže
  • Video nadzor objekta
GP Tehnika inžinjering Bijeljina
Powered by limun.co