Stanovi
Tehnika inzinjering Bijeljina

46.02 m2 filipavisnjica82-9

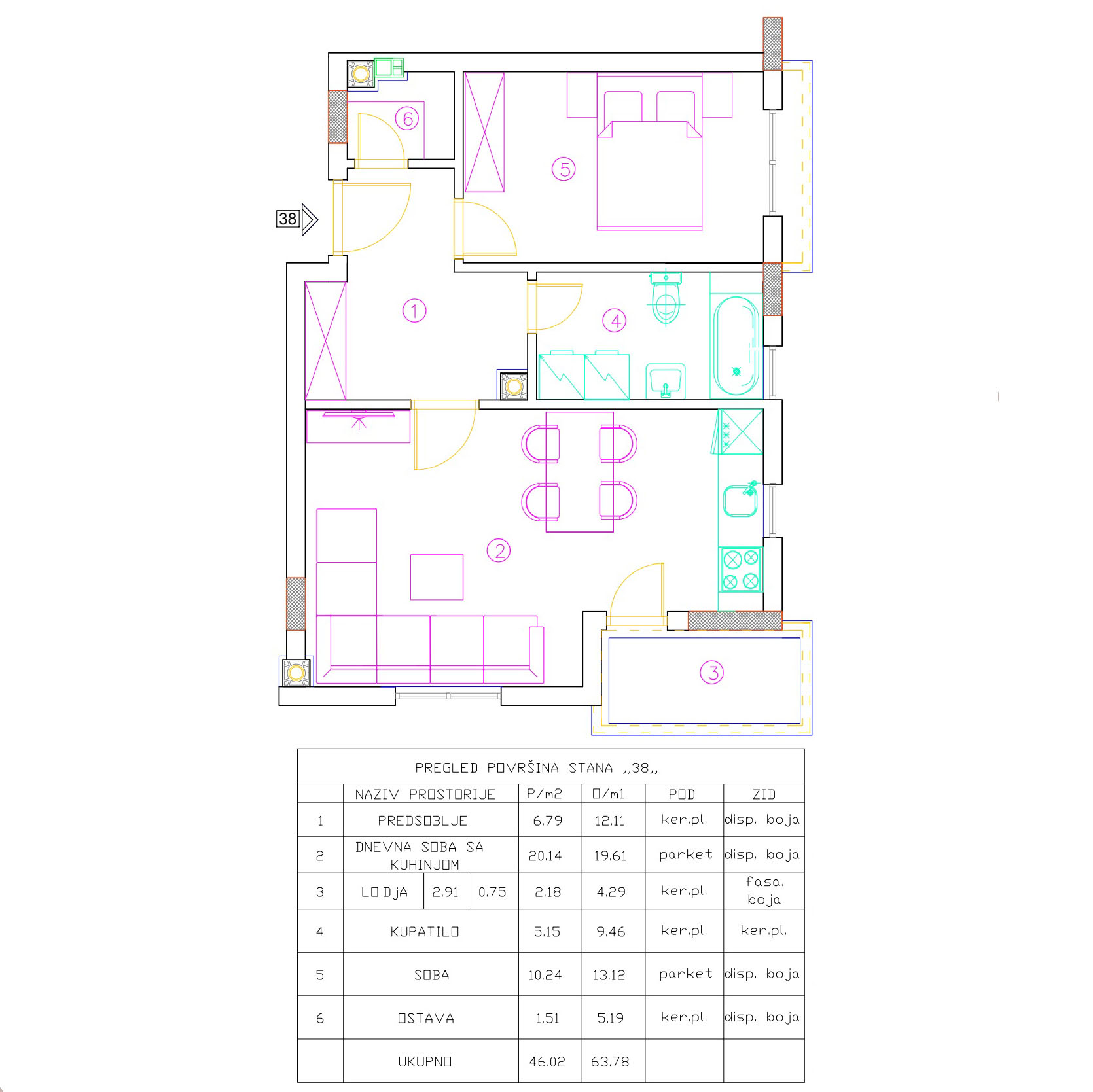
Br Prostorija Kvadratura 1 Predsoblje 6.79 m2 2 Dnevna soba sa kuhinjom 20.14 m2 3 Lodja 2.18 m2 4 Kupatilo 5.15 m2 5 Soba 10.24 m2 6 Ostava 1.51 m2   Ukupno 46.02 m2   ...Pročitajte više
3D vizuelizacija ne odgovara stvarnom rasporedu prostorija.
Filipa Višnjića 82

46.02 m2

dvosoban
Dostupni spratovi
Nije dostupan
Rok završetka
31-12-2022
Besplatno

  • Struktura prostorija
Br Prostorija Kvadratura
1 Predsoblje 6.79 m2
2 Dnevna soba sa kuhinjom 20.14 m2
3 Lodja 2.18 m2
4 Kupatilo 5.15 m2
5 Soba 10.24 m2
6 Ostava 1.51 m2
  Ukupno 46.02 m2
 
Karakteristike zgrade i materijali
  • Spratnost Po+P+6
  • Vanjska stolarija PVC petokomorna
  • Ulazna vrata sigurnosna
  • Unutrašnja vrata TIP "NOVOFORM"
  • Parket hrastov
  • Keramika I klase
  • Grijanje - kotlovnica na čvrsto gorivo
  • Fasada "Demit" termoizolacija d=10 cm
  • Lift
  • Parking
  • Garaže
  • Video nadzor objekta
GP Tehnika inžinjering Bijeljina
Powered by limun.co